Zum Hauptinhalt springen Zur Suche springen Zum Menü springen

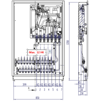
EvoFlat Wohnungsstation 4.0 F2 - 17,6 l/min

Preise nach Anmeldung sichtbar