Zum Hauptinhalt springen Zur Suche springen Zum Menü springen

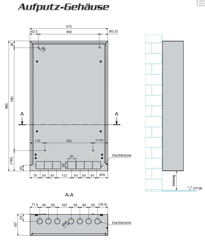
aqoLoft Aufputzgehäuse f. GHK-DHK H960xB575xT157

Preise nach Anmeldung sichtbar